316 visitas
Marca: Arqkaro
Origen: Guatemala
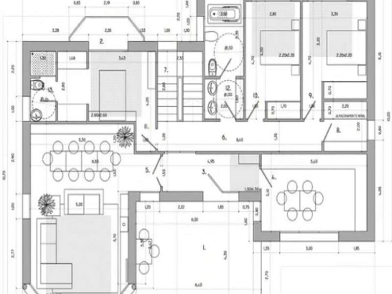
Arqkaro Arquitectura ofrece servicios de elaboración de planos de construcción detallados. Estos planos son esenciales para la ejecución precisa de proyectos arquitectónicos y proporcionan información técnica necesaria para la construcción.
























