274 visitas
Marca: Sertecon
Origen: Guatemala
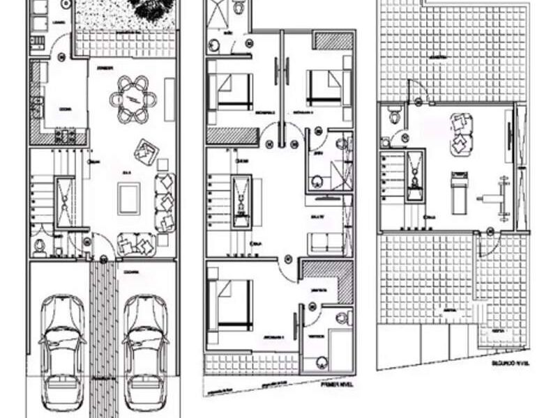
Los planos arquitectónicos son dibujos que representan la estructura y diseño de un edificio o construcción. Son elaborados por arquitectos y otros profesionales de la construcción, y sirven como guía para la construcción del proyecto.