253 visitas
Marca: TecInpro
Origen: Guatemala
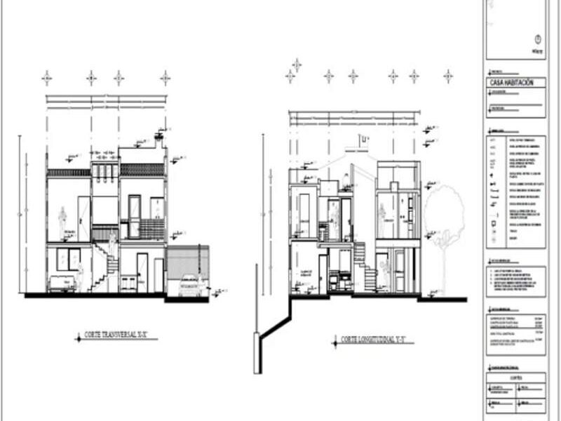
El servicio de planos arquitectónicos es un servicio profesional que brinda un arquitecto para diseñar y documentar un proyecto de construcción. Los planos arquitectónicos son documentos técnicos que representan la forma, la estructura y los detalles de una construcción.