186 visitas
Marca: Versare Inc
Origen: Guatemala
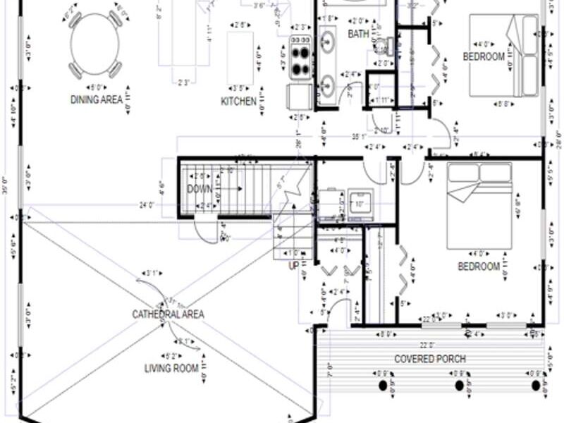
Nuestros servicios de diseño de planos se centran en traducir sus ideas y requisitos en planos detallados y precisos que sirven como la base sólida para su proyecto. Con un enfoque en la claridad y la viabilidad, nuestros planos reflejan sus expectativas y se adaptan a las regulaciones y estándares de la industria.
























